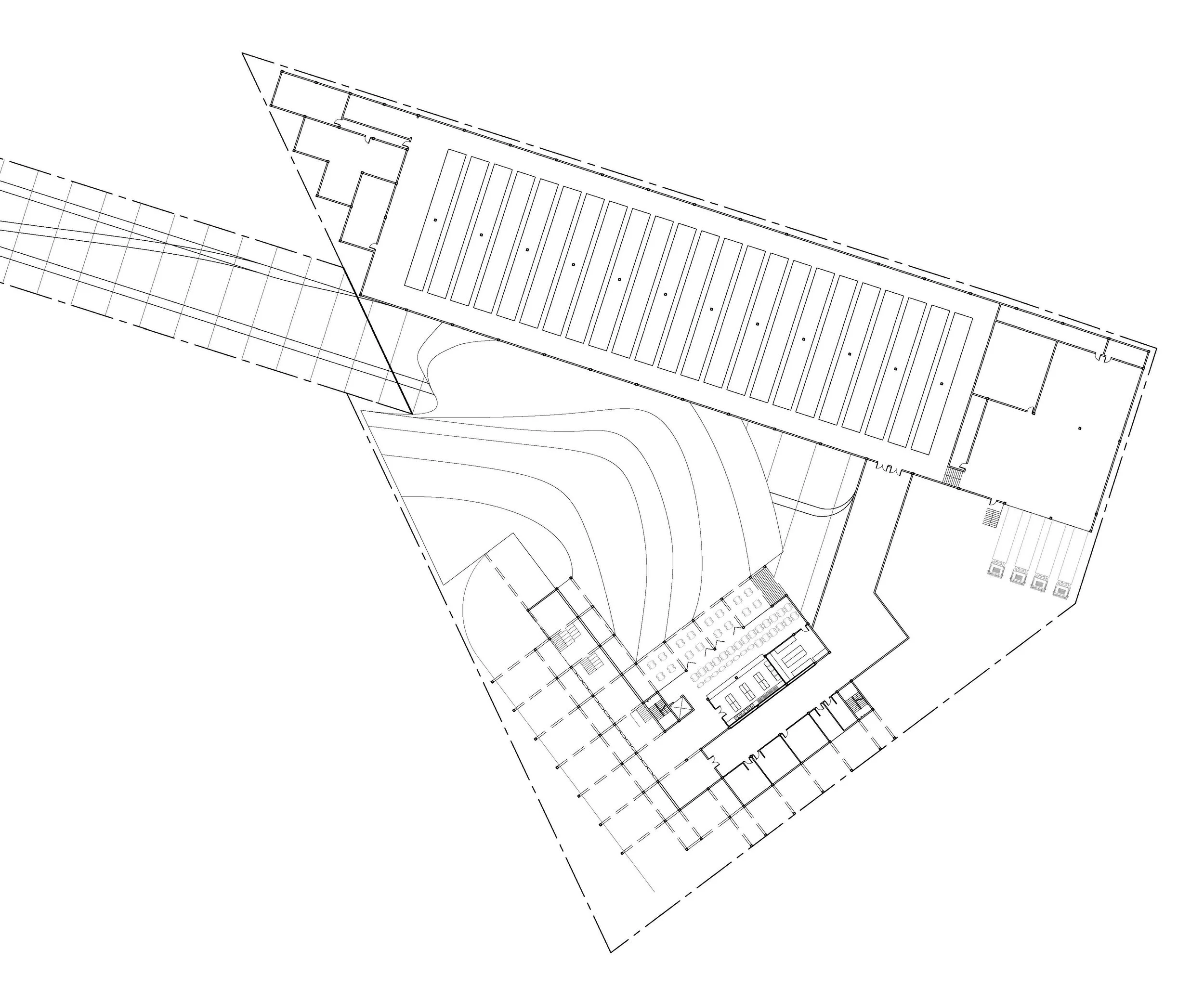
mODERN aGORA

The residents may farm on the site and then occupy one of the vendor stands built into the pedestrian path along McGregor Avenue, and sell their products. The integration of this community farm and the marketplace along McGregor Avenue creates a modern agora, and a destination for the residents of the ironbound.